Видеонаблюдение Ворота Заборы Металлоизделия
в Минской области и Беларуси

Распашные ворота с профнастилом дерево

Основные параметры:

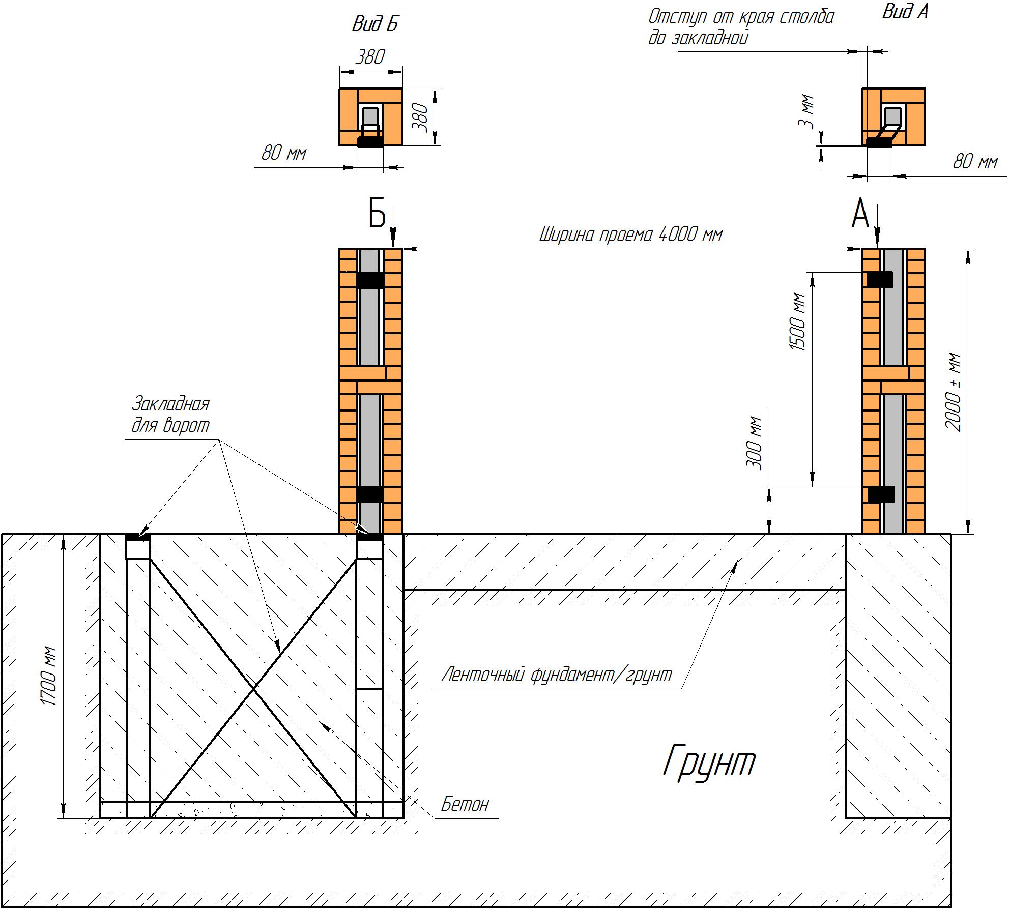
Размер: высота до 2м, ширина до 4м
Каркас: из проф. трубы 60*40*1,5мм/2,0мм
Столбы: 60*60*3,0мм/80*80*3,0мм
Заполнение: профлист, металлоштакет, жалюзи и др.
Покрытие: окрашены (грунтовка, краска)
Цвет: по кат. RAL
"Возможно изготовление ворот по индивидуальным размерам"

Описание товара:

Сегодня производители могут предложить множество разновидностей ворот, но потребителей больше остальных видов привлекают распашные ворота. Такие изделия обладают массой достоинств: невысокой стоимостью, низкой трудоемкостью при их возведении своими руками, высокой долговечностью и простотой эксплуатации. Именно этим можно объяснить повышенный интерес со стороны многих владельцев к воротам такого типа.

Для правильного определения размеров ворот обязательно нужно замерить габариты автомобиля, который будет проезжать сквозь них. В среднем стандартный автомобиль имеет ширину два метра. При расчёте добавьте к этому значению по 50 см с каждой из сторон для возможности осуществления маневров автомобиля. В итоге общая длина ворот получится примерно три метра. Что касается высоты створок, то для них оптимальным будет значение от 1,8 до 2 м.

Популярные товары

Узнать точную стоимость
Заказать звонок
Заказать расчет
Оставьте заявку на расчет стоимости, мы свяжемся с Вами в ближайшее время.